This section is from the book "Cyclopedia Of Architecture, Carpentry, And Building", by James C. et al. Also available from Amazon: Cyclopedia Of Architecture, Carpentry And Building.
The heavy girts are used only in the braced frame. In the balloon frame, light pieces called "ledger boards" or "ribbons" are substituted for them. These are usually made about 7/8 inch thick and 6 or 7 inches deep, and are notched into the posts and intermediate studs instead of being framed into them as in the braced frame. This notching is shown in Fig. 104, on which A is the ledger board and B the stud. The ledger boards themselves are not cut at all, but the floor joists which they carry are notched over them, as shown in Fig. 105, and spiked to them and to the studding. In Fig. 105, A is the joist, B the ledger board, and C the stud. Even in the braced frame a ledger board is usually employed to support the joists of the attic floor, which carry little or no weight. The disadvantage of the ledger board is that, as a tie between the corner posts, it is less effective than the girt, and consequently a wall in which it has been substituted for the girt is not as stiff as one in which the girt is used.

Fig. 103. Notched Post in Balloon Framing.

Fig. 104. Notched Stud with Ledger Board.

Fig. 105. Ledger Board with Notched Floor Joist in Place.

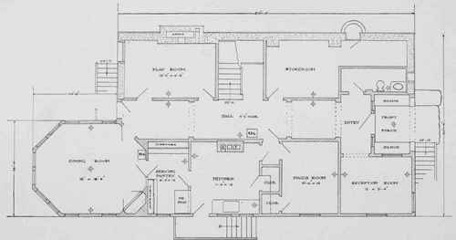
GROUND FLOOR PLAN.
SUMMER COTTAGE FOR THE MISSES DUMMER AT HARBOR, POINT. MICH. POND 5 POND, ARCHITECTS CHICAGO. ILL.
Built in 1903. Cost, $7,300. For Exterior, see Plate Opposite Foreword in this Volume; for Living Room, see Page 86.

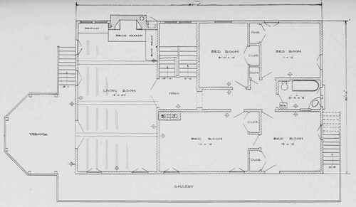
FIRST FLOOR PLAN.
SUMMER COTTAGE FOR THE MISSES DUMMER AT HABBOR POINT, MICH. POND & POND, ARCHITECTS.
Ground-Floor Plan Shown on Opposite Page.
 
Continue to: